Margaret Coulson, aged 90.

Margaret is the babe in arms on the far left of the photo. Probably taken at Flowton. Courtesy of E. Christman.
After I posted a Blog about the Church Tower in early October this year, I had a response from Elizabeth Christman. We fell into talking about maps and the boundaries of St. Martins and the surrounding area and as a result I offered to show her some of the material I have relating to our locality. We agreed to meet on what turned out to be her mother Margaret Coulson’s 90th birthday and as we peered over photographs both real and digital, I discovered Margaret had been a long term resident of the village, attended St. Martin’s school and lived in ‘Hamsey’s Farm’. Needless to say, I was beguiled by someone who had memories of Trimley in the first half of the 20th century and was quietly elated when Margaret agreed I could return and talk to her at more length. When I asked for an exact spelling of her name, her reply was that everyone would know her as Margaret Coulson, which was her maiden name. What follows is just a fraction of the story of her long life.

A very young Margaret sitting on the far right with her brothers William and Ray and a friend. Probably taken at Flowton.
Courtesy of E. Christman.
Like many others in St. Martin’s in the 1930s, Margaret was not born in this village but at Valley Farm, Flowton on 15th October 1928. Her family didn’t stay there too long but moved on to nearby Lower Somersham where her father worked as a Pig Stockman at Cold Hall. (He had been born in old West Suffolk and served in the Infantry in the First World War.) During her time in Lower Somersham, two of her brothers were born. Additional excitement also came when she started school. Unlike today’s children was Margaret’s first taste of education involved a three mile walk to and from the school. She was exactly ten, when her father started a new job as a Stockman at Capel Hall Farm, on her birthday, 15th October 1938. He was still a Stockman but this time the animals were Bullocks. With the job came a tied cottage which Margaret said they always called ‘Hamsey’s” although you might know it better Ham’s Farm, its’ current name. The house they moved into was not one tied cottage but two, knocked through to form one large building. When someone asked her mother why she needed two houses, she replied, “Because I have eight children!” In fact, her family was not complete because two more boys who were born at Ham’s, one in 1940 and one in 1942. Margaret met the Midwife on her way home after the birth of one of her baby brothers and was told there was a “…nice little surprise waiting for you at home.” And with these two small additions to the family, one large cottage would certainly have been much better than one small half because at the final count home comprised ten children and Margaret’s parents.
Margaret’s childhood at ‘Hamsey’s’ was a good one, complete with the benefits of a rural upbringing.
“Father grew all our vegetables and in the Second World War Mother received many ration coupons because there were so many of us. Mother baked once a week, probably on a Friday. She was a good cook …sometimes she used to make Suffolk Rusks … yes, she was a very good cook! Monday was always Wash Day”
She recalled the daily walk to Capel Hall for a free pint of milk, which waited in a bucket, covered with muslin. It wasn’t all the milk the household received; probably the remainder was bought. Sometimes her father was employed in the fields during the harvest when of course, every hand would be needed. The long summer evenings lent themselves to enjoying the outdoors and Margaret remembers having picnic teas in the field, which would be transported in something called a ‘Beaver Bag’. Prior to the Second World War, her older brothers were also involved in working on the farm. Subsequently three of them served in the three different services and mercifully, all of them escaped injury. Bill served in the Army, Cyril in the Airforce and Ray in the Navy. However, although Cyril survived the War, his wartime career was dominated by his three years as a P-O-W camp in Singapore. Margaret mentioned his condition in low tones: upon release he weighed just three stone. As for her sisters, well, at one point,Margaret’s sister Elizabeth looked after Charles Posford as a small child and worked for Josephine Posford when the family were in London.
But before this happened Margaret was still a school girl. She would walk across the fields to and from St. Martin’s school, where she eventually emerged as a good scholar and I suspect, a diligent one. To this day, she can recall all the birthdays of the girls at school with her. At the age of 14, when the time came to leave, Margaret was third in the class. (Her excellent memory recalled her it was Daphne Scott who came first and Nancy Smith second.) Her capability was such that it was her ambition to work in an office, something which would have been prestigious and very desirable at the time but it’s often the Way of the World to thwart our ambitions as soon as they are imagined. The lady from the ‘big house’, Mrs. Dorothy Dawson came to call and asked her what she intended to do now school was behind her. When informed Margaret wanted to work in an office, she was told her future lay in becoming a maid at the ‘Big House’, Capel Hall. And having been nudged into it – “You’ll get good food there!” her father said – Margaret began her working life.
I have often thought Capel Hall and the small surrounding community has a distant persona, part of the village but remote and largely untouched by it. Yes, it’s in St. Martin’s but as it’s not on any main road most of us have no cause to go there. The surrounding area, with the stretching, unchanged views towards the River Deben and Bawdsey almost place it beyond the reach of everyday people as if were caught in time. But of course, the people who occupied Capel Hall now and then were very real and so was they work they carried out. If you view the 1939 Register you can find the small community recorded, sitting on the edge of the Second World War with all its’ inherent fears. It shows what looks like a self-sustaining group of families with assured lives, all of which were about to change. Everyone living in the houses surrounding the Hall had a part to play in the running of the farm. Gardeners such as Ernest Wright and William Button, Heavy Horse workers like Jack Reynolds and Frederick Peck, as well as a younger Frederick Peck, the van driver, to name just a few.

Young Margaret, aged about 15. Courtesy of E. Christman.
The youthful Margaret, aged just fourteen, became part of this more intimate part of the world in 1942, working as she did for Mr John Harold Dawson and Mrs Dorothy Dawson, the farming occupiers of the Hall. Margaret was carefully instructed in how to proceed: she was to call Violet Reynolds the Cook, ‘Mother’ and Mrs. Dawson, ‘Madam’. Her working hours were approximately 9 a.m. until 5.00p.m. and her duties included setting the table for meals, for which it appears she had a “straight eye”; an important attribute because a well presented table would always reflect favourably on the mistress of the house. I asked Margaret if her work involved any washing but she explained this was definitely not something she did. It was carried out by one of the women on the Estate. However, one of her work responsibilities involved sleeping overnight in the servant’s quarters when guests stayed at the Hall. Margaret talked with affection about the house:
“It was a lovely old house with a huge entrance and a massive staircase. There were three storeys and I loved sleeping overnight because I had a room to myself. “
There were three bedrooms, one for each of the servants, plus their own bathroom and lounge. Visitors slept on a different floor. It was Margaret’s duty to help with breakfasts for the guests and of course, as she had stayed over, she also ate there although not, of course, with the guests.
“Cook was very thrifty when she cooked and served up but when Madam cooked she would pile my plate high!”
The larder was bountiful with pheasants and sides of bacon hanging from the roof but although food was abundant, Margaret couldn’t recall alcohol being available. Her recall extended to the times when she received reprimands on a few occasions. Once because she failed to escort a guest into the Hall correctly and once when she accidentally slipped and dropped some mince pies. In every situation there is always someone who plays good cop to another’s bad cop and on those occasions requiring admonishment, it was Mrs Dawson who rebuked her and Mr. Dawson who soothed the situation. But this didn’t impact on her general contentment with her position. On the whole Margaret enjoyed her time working in the Hall but like many young people, the time comes when a certain restlessness sets in and you know it is time to move on to something different. So, it was with Margaret and after three years she took a different position elsewhere, working as a Nursemaid or if you prefer, a Children’s Nanny.
By now it was 1945 and Margaret had reached the grand age of seventeen. Her new employers were Dr. Major Webber and his wife. The household was of a very different structure, not least because it contained four children who became her daily responsibility. Washing is almost inevitably part of a child’s landscape and this house had a twin tub, an innovation not known to many at the time. The family were warm in their acceptance of her, asking her to eat with them but Margaret preferred to have her meals in the kitchen. I think Margaret must have proved to be very satisfactory as a Nursemaid because she continues to keep in touch with the oldest child, although he can hardly be described as a child anymore. He, John Webber is now in his seventies and he and Margaret continue to correspond about family matters. At the funeral of one of the children she was lovingly greeted by the surviving siblings who called her ‘Nanny’ and surrounded her with affection.
Margaret was still young when she worked for the Webbers and again life moved on. She married in 1953, moved to America, raised her own family and eventually found her way back to Trimley. And here she is, aged 90, with an enviable recall of the long gone years when she was a girl starting out in life.
After our conversation together, I was curious to see and visit Hamsey’s, especially after Margaret’s daughter Elizabeth kindly sent me a photograph of the house taken in 1947. It is a typical Suffolk tied cottage, hundreds of which used to dot the countryside when there was work enough on the land to warrant maintaining farm cottages. You may have seen many such houses in your time, if you were a child born before the 1990s.

Hamsey’s in 1947
The two cottage doors are clearly visible, announcing to the world the dual accommodation available in the building and it is obvious why Margaret’s mother needed both sides with such a large family. This photo compelled me onwards to contact the current owner, Bob Parker, to enquire if I could take a contemporary photograph. He was swift to accommodate my request and below is the same view of the house taken slightly closer to the walls of the house:

Ham’s Farm House, November 2018.
The above photo doesn’t show the two new annexes on either side, which are visible from the track side of the property. Bob made a point of directing my attention to one of the chimney pots on the end of the house. You can just about see, something etched or moulded into the brick. We thought it said 18 HC 77, suggesting the house or maybe just the chimney, was built in 1877. HC is likely to stand for Horace Cobbold, the owner of Capel Hall in the late 1800s who would have provided tied cottages for his workers and their families.

Ham’s Farm House Chimney Pot, November 2018
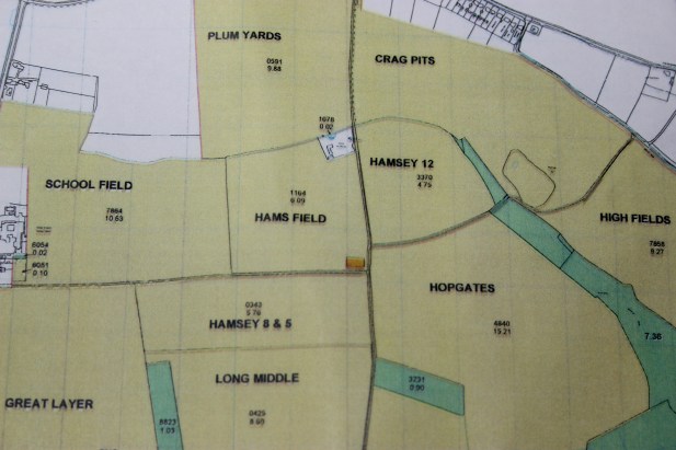
Bob also took time to show me the boundary between Kirton, Falkenham and Trimley St. Martin.. He and Margaret’s family touched on the cusp of three villages, although the house is definitely in St. Martin’s. The photo below was taken in St. Martin’s and looks towards Kirton; the small stream flows down through Kingsfleet and thence to the North Sea. He also gave me a copy of a map of the area immediately surrounding Ham’s Farm House, which includes field names.
The Stream which separates Kirton, Falkenham and Trimley St. Martin, taken from St. Martin’s side of the boundary. Kirton is on the other side of the left hand fence.

Map of area adjacent to Ham’s Farm House. Ham’s is the small white square slightly above the middle of the map. To the far left, the white patch next to ‘School Field’ is the School .
It was fascinating to see the house where Margaret grew up, the surrounding land and its detachment from the three adjacent villages. Eighty years have gone since Margaret first moved to Hamsey’s and she has seen many changes, as has the house. These changes aren’t just technological; farm workers have been largely replaced with machines; tastes in food have altered; social expectations are far greater; domestic servants are a rarity. Margaret’s description of her early years provide a valuable insight into how much daily life has altered.
I am immensely grateful to Margaret and her daughter, Elizabeth, for giving me the time to talk about her early years in Trimley and the working world she entered seventy plus years ago. I can only heartily thank her and wish her the very best of health and contentment as she enters her early nineties.

Young Margaret
*************************************************************************************
Post Script
Margaret and I had a brief conversation about Suffolk Rusks which her mother used to bake. Until comparatively recently many Suffolk tea tables would sport these traditional items on Sundays, often alongside sandwiches, cake, home-made biscuits and trifle. I’m reproducing the recipe from my own mother’s recipe book should anyone wish to sample them. She had it from Jack Reynold’s daughter, Mary Taylor, née Reynolds and I suppose she had the recipe from her mother, Jack’s wife, Dorothy. They always used lard but you could more happily substitute this with Trex. You may have to experiment with the temperatures as the ovens previously deployed were certainly not as sophisticated as the modern Fan Oven. I rather fancy at least one was an open range!
Suffolk Rusks á la Trimley
Ingredients
8 ounces self-raising flour
3 ounces lard
1 egg
Salt to taste
Milk
Method:
- Rub the fat into the sifted flour and salt.
- Add the beaten egg and milk to make a smooth dough.
- Roll out and then cut out individual rounds 2” in diameter and 1” thick
- Bake in a hot oven, say 180c in a fan oven, until almost cooked. (Maybe 15 minutes.)
- Split in half and then re-bake in a medium oven. (Maybe 140c in a fan oven) Make sure the split side is uppermost baked until crisp.
Serve well buttered. In fact, the more butter, the better.
*************************************************************************************
Acknowledgements
Personal photographs of Hamsey House, the Young Margaret aged 15, the family at Harvest Time and the young Margaret sitting on the gate are all courtesy of Elizabeth Christman.
The specialised map is courtesy of Robert Parker.
The remaining photographs are my own.
If you have any comments or would like to be part of this Trimley St. Martin project, please contact me at:
trimleystmartinrecorder@gmail.com
LR
16/11/2018
I really enjoyed reading you Blog of Mum’s early life. Hope others enjoy it too. Thanks for sharing it
LikeLike
Thank you, Elizabeth. One lovely lady and as I think I said to you, as bright as a button!
LikeLike
Lovely blogs Liz, easy to read and the photos are lovely.
LikeLike
Thank you, Julie. I just keep going. Margaret Coulson was a lovely subject with far more information than I could capture in the time I had.
LikeLike
Liz, just to let you know that Mum was taken to Ipswich on Friday, by paramedics. I went yesterday about 4 pm to take some clothes etc and when I was there, she was asleep. I stayed a while then went to see thenurses to see how she was. All was ok so I wwent home,after4pm or so. We
Then I let my brother know what was going on.About 5:30 pm, the horpital rang and said she didn;t look so good and ptobably only had a few hours left. Tjen the nurse said I will quickly go and see how she is, then a little latercame back to the phone and said Mum had just passed away in that moment.
Today my elder brother and I went to the hospittal to pick up her things that i had taken up yesterday etc. So as you had interviewed Mum a couple of tomes, I thought you would like to know she died 5th January 201-9, at about 5:30 pm.
Bye now and take care, Elizabeth Christman
LikeLike
Hello Elizabeth
First of all , I would like to say how saddened I am for you and your brother. A shock for you all especially as it happened in such a short space of time.
Thank you so much for letting me know. I will make a note of it in my records but more importantly, I will think of you all, especially in the next few days and remember an excellent woman, your mother.
I am very aware of how privileged I am to have met and talked to the woman who was Margaret Coulson. I was struck by her acuity and the excellent recall she had of events that happened so long ago; her intelligence simply shone through in the photo of her as a young fourteen year old girl. Someone who recently read the Blog, remarked what a lovely looking young woman looked out of the photos. And indeed, she possessed a beautiful face.
I am sure the next few weeks and months will be difficult for you as you deal with the immediate practical issues following her death, as well as coming to terms with your bereavement. I can only send my very best wishes to you and your family and thank you for giving me the opportunity to meet your mother. Please let me know if there is anything you think I might be able to contribute.
With love,
Liz
x
LikeLike
I grew up with Robert, Margaret’s son, so she was like my other mother, I had not heard of her earlier life
LikeLiked by 1 person
Thank you for commenting. I think she was kind woman who obviously knew and understood about working and being with young children. It was such a pleasure to meet her.
LikeLike